[RPPTL-constructionlaw] CLC MAY 13, 2013 CLE MATERIALS

Heron, Lisa Colon LCHeron at smithcurrie.com
Mon May 13 07:52:01 PDT 2013


CLC MEMBERS,

Attached are the written materials for today's presentation.

Y. Lisa Colon Heron, Esq.
Partner
Board Certified Construction Attorney
SMITH, CURRIE & HANCOCK LLP
954.761.8700 Telephone
954.769.5329 Direct
954.524.6927 Fax
www.smithcurrie.com

PERSONAL & CONFIDENTIAL. This email and all attachments transmitted with it may contain legally privileged and confidential information intended solely for the use of the addressee.  If the reader of this message is not the intended recipient, you are hereby notified that any reading, dissemination, distribution, copying or other use of this message or its attachments is strictly prohibited.  If you have received this message in error, please notify the sender immediately by telephone at 954-761-8700 or by electronic mail, and delete this message and all copies and backups thereof.  Thank you.
-------------- next part --------------
An HTML attachment was scrubbed...
URL: <http://mailman.fsr.com/pipermail/constructionlaw/attachments/20130513/ffd93b13/attachment.html>
-------------- next part --------------
A non-text attachment was scrubbed...
Name: workerscomp 001.jpg
Type: image/jpeg
Size: 922939 bytes
Desc: workerscomp 001.jpg
URL: <http://mailman.fsr.com/pipermail/constructionlaw/attachments/20130513/ffd93b13/workerscomp001.jpg>
-------------- next part --------------
A non-text attachment was scrubbed...
Name: workerscomp 002.jpg
Type: image/jpeg
Size: 752821 bytes
Desc: workerscomp 002.jpg
URL: <http://mailman.fsr.com/pipermail/constructionlaw/attachments/20130513/ffd93b13/workerscomp002.jpg>
-------------- next part --------------
A non-text attachment was scrubbed...
Name: workerscomp 003.jpg
Type: image/jpeg
Size: 835426 bytes
Desc: workerscomp 003.jpg
URL: <http://mailman.fsr.com/pipermail/constructionlaw/attachments/20130513/ffd93b13/workerscomp003.jpg>
-------------- next part --------------
A non-text attachment was scrubbed...
Name: workerscomp 004.jpg
Type: image/jpeg
Size: 789687 bytes
Desc: workerscomp 004.jpg
URL: <http://mailman.fsr.com/pipermail/constructionlaw/attachments/20130513/ffd93b13/workerscomp004.jpg>
-------------- next part --------------
A non-text attachment was scrubbed...
Name: Stop Work Orders and the Construction Industry.pdf
Type: application/pdf
Size: 214844 bytes
Desc: Stop Work Orders and the Construction Industry.pdf
URL: <http://mailman.fsr.com/pipermail/constructionlaw/attachments/20130513/ffd93b13/StopWorkOrdersandtheConstructionIndustry.pdf>
-------------- next part --------------
A non-text attachment was scrubbed...
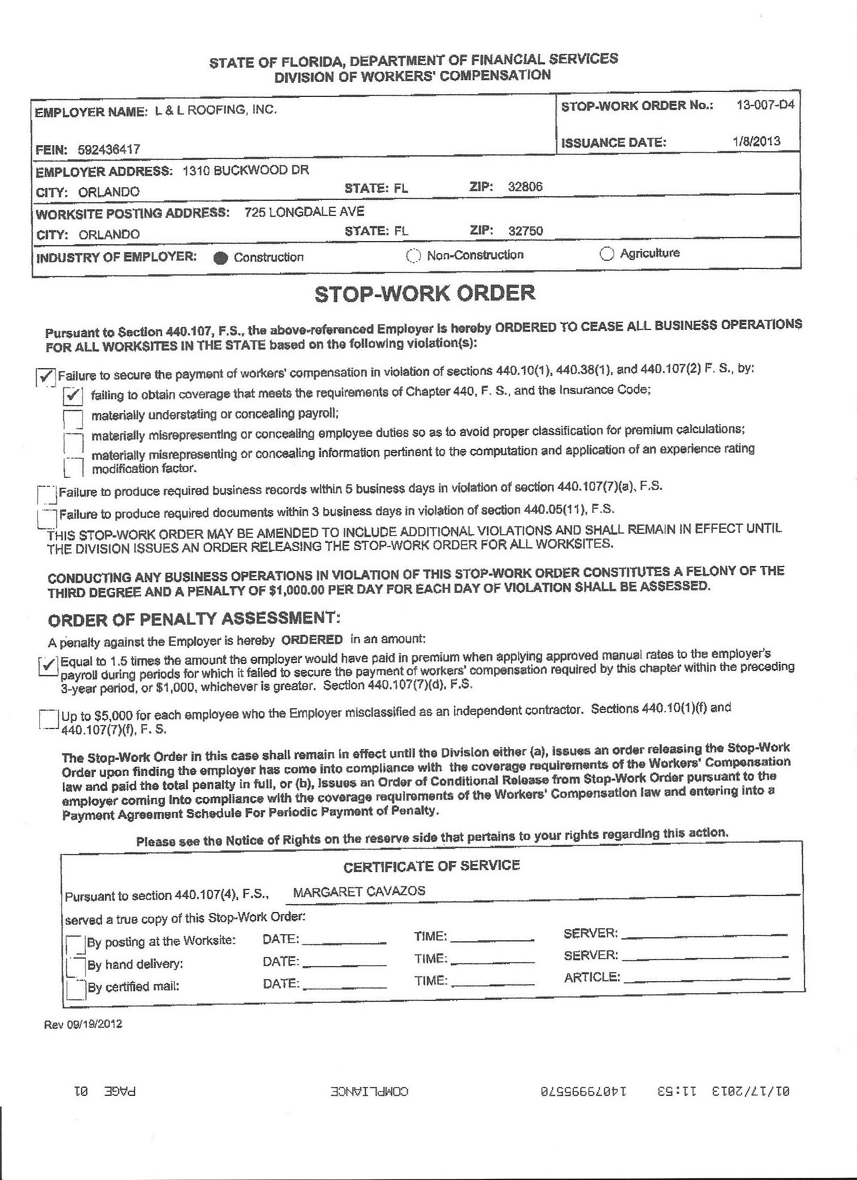
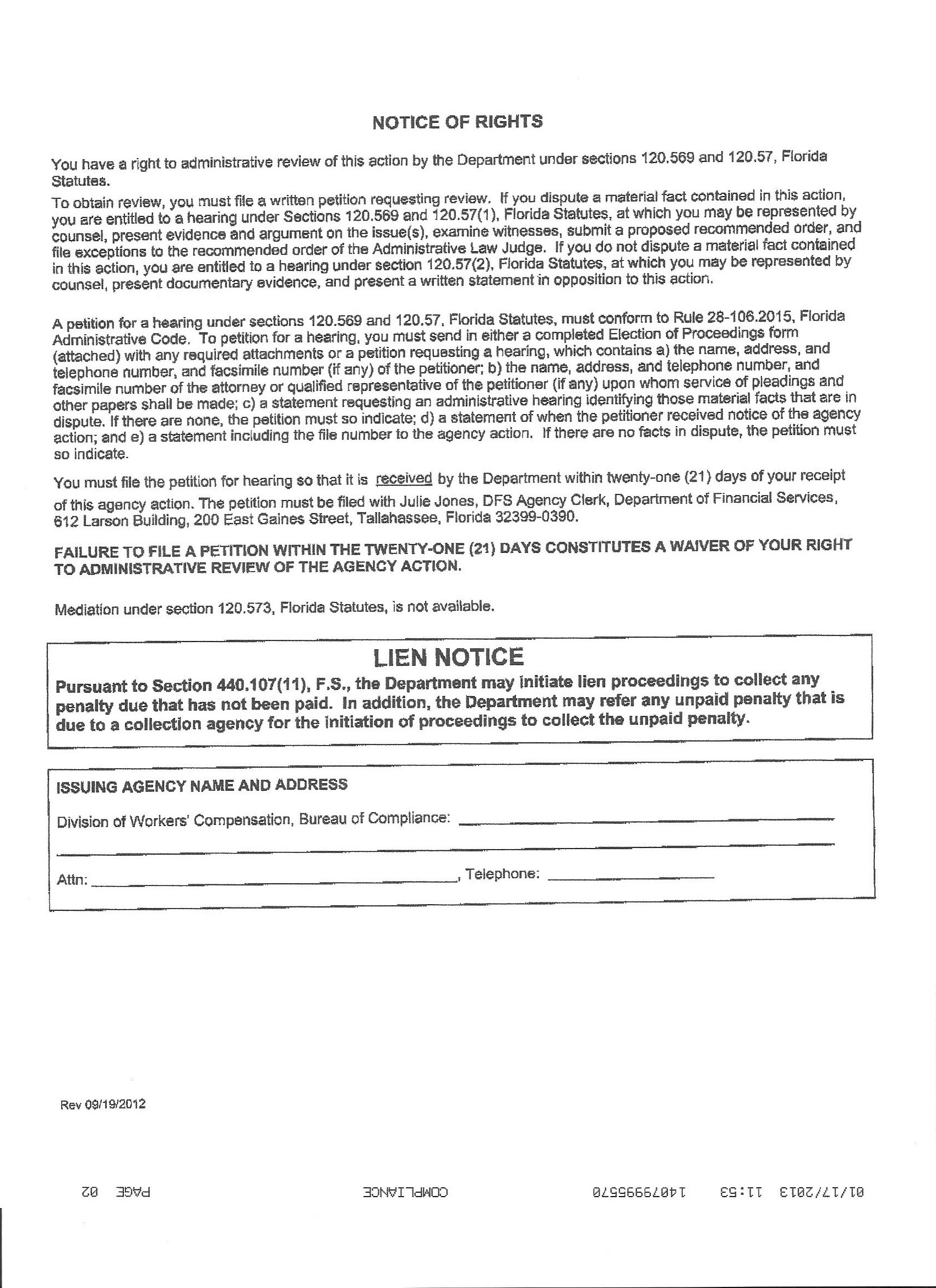
Name: L&L Roofing, Inc. - 022513 Draft Penalty.pdf
Type: application/pdf
Size: 71469 bytes
Desc: L&L Roofing, Inc. - 022513 Draft Penalty.pdf
URL: <http://mailman.fsr.com/pipermail/constructionlaw/attachments/20130513/ffd93b13/LLRoofingInc.-022513DraftPenalty.pdf>


More information about the constructionlaw mailing list